Entwurf zu Neubau Kindergarten, geladener Wettbewerb, Amstetten (AT), 2009

Entwurfskriterien
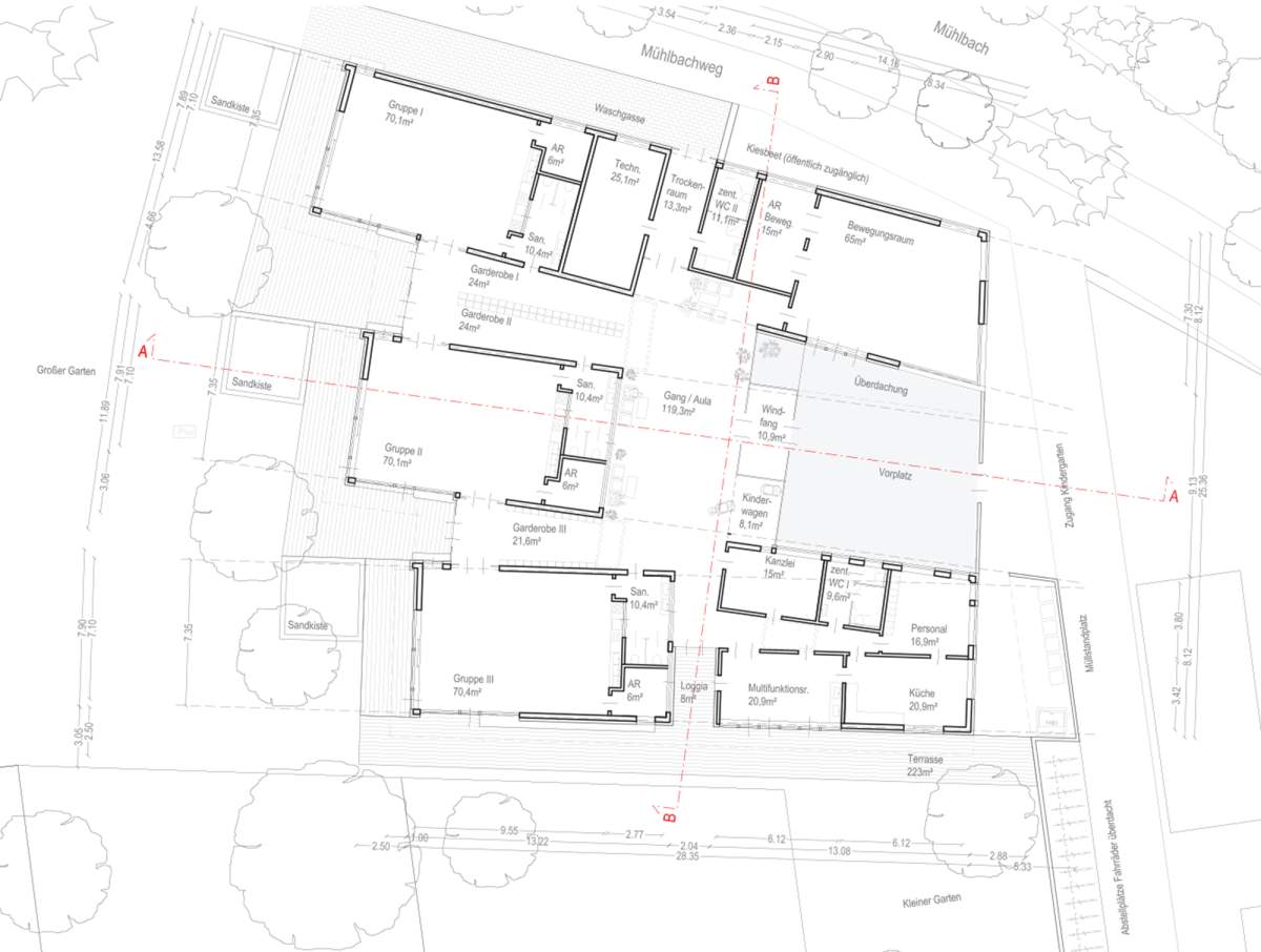
Ankunft
Markant umfasster Vorplatz im Osten mit Beziehung zum Bewegungsraum und zum Personaltrakt.
Garten
Gebäude dicht an Grundstücksgrenzen ermöglicht eine große Gartenfläche.
Durchsicht
Die offenen Garderoben zwischen den Gruppenräumen trennen und verbinden die Gruppenräume. Ebenso gewährleisten sie Durchsicht durch das Gebäude.
Pavillons
Die Gruppenräume zeichnen sich als einzelne „Pavillons“ im Garten ab und öffnen sich großzügig Richtung Westen und Süden zu Garten und Pergola-Terrassen-Räumen.
Innen- und Außenbeziehungen über tiefe Fassaden
Durch die Auffächerung der Gruppenräume entstehen eine Serie kleiner Außenräume: Loggias und teils überdachte Terrassen, die zu zusätzlichen Erlebnisräumen der Kinder zwischen Innen und Außen werden.

AusloberIn Stadt Amstetten
Planungsjahr 2009
Planungsteam Gabu Heindl, Daniel Ehrl



