Realisierung / geladener Wettbewerb 1. Preis, Kindergarten, Rohrendorf (AT) 2008

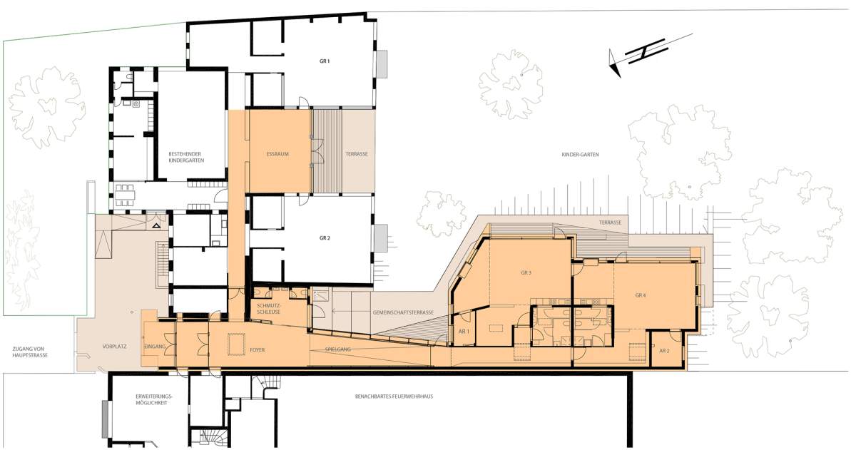
Bei der Erweiterung des Kindergarten Rohrendorf um zwei Gruppen und einem neuen Foyer sollte der großzügige Garten im Süden des Grundstücks nichts an Qualität und kaum an Größe einbüßen. Folglich schmiegt sich der Neubau direkt Richtung Garten unmittelbar an die Feuermauer des Gemeinde-Feuerwehr-Gebäudes. Die zwei Gruppenräume, „Pavillons“ im Garten, öffnen sich über großzügige Holz-Schiebefenster zum Außenbereich Richtung Osten und über Oberlichter nach Süden. Außenliegende Jalousien und die bestehenden Bäume im Süden sorgen für jahreszeitgerechte Verschattung.
Die Fassade ist zweigeteilt: aus naturbelassenem Lärchenholz im Kinder- und aus Eternit im Dachbereich, wobei der untere Bauteil als Ziegelbau, die voluminösen Sheddächer in Holzriegel-Konstruktionsweise errichtet wurden. Die Fassade enthält rundum „Erlebnisnischen“, öffenbare Räume in Kinderhöhe, die den spielerischen Wechsel zwischen Innen und Außen möglich machen. Niedrige Spielfenster, abwechselnd von außen und innen „bewohnbar“, wechseln sich ab mit raumhohen Öffnungen und geben dadurch differenzierte Aus- und Durchblicke frei.
Die Aufenthaltsräume sind kontrolliert be- und entlüftet, der gesamte Zubau ist mit Fußbodenheizung ausgestattet, die von einer Wasser-Wasser Wärme-Pumpe betrieben wird. Der Kindergarten wurde in nur fünf Monaten erbaut bei parallelem Betrieb in den alten Räumen. Als Niedrigenergie-Kindergarten erreicht der Zubau eine Energiekennzahl von 25 kWh (m2/a) durch die Kombination nachhaltiger Materialien mit guten Dämmwerten mit der präzisen kontextuellen Ausrichtung des Baukörpers in Bezug auf passive Sonnenenergienutzung.

AuftraggeberIn
Gemeinde Rohrendorf / Krems
Wettbewerb 1. Preis, 2007
Planungszeit
2007-2008
Bauzeit
April – September 2008
Planungsteam
Gabu Heindl, Christian Zellner, Alexander Furtmüller, Daniel Ehrl
Fotos
Lisa Rastl




