Planung im Auftrag von Kunst im öffentlichen Raum Niederösterreich
Wettbewerb, 1. Preis
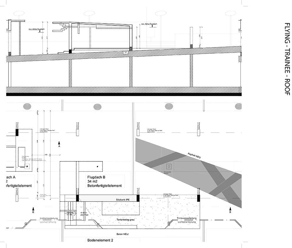
Platzgestaltung mit einer Skulptur für Parkour, St. Pölten 2009

Als eine Praxis, eine Art, sich zur Stadt zu verhalten, macht Parkour das Umfunktionieren, das Umnutzen, zur Sache von Blitzschnelligkeit und zugleich von Routine: Wo spielen nicht erlaubt ist, wird gesportet, was für die einen ein Dach ist, ist für Traceure Landezone oder Absprungsfläche, und das geht im Flug oder zumindest im Sprung. Parkour hinterfragt dabei die Spielregeln der Stadt, unterläuft die Gesetze der Schwerkraft und gestaltet funktionale Bewegungsräume der Stadt zu Trainings- und Spielräumen um. Was der Architekturtheoretiker und Urbanist Iain Borden über Skateboarding schreibt, lässt sich auch für Parkour denken; geht es denn auch um „use values rather than exchange values, activitiy rather than passivity, performing rather than recording, potential components of the future, as yet unknown city“.

ProjektpartnerInnen
Kunst im öffentlichen Raum
Niederösterreich / Public Art Lower Austria, Austrian Freestyle Foundation St.Pölten (AFF), Festspielhaus St. Pölten, Landesmuseum St. Pölten
Planungsjahr
2009
Planungsteam
Gabu Heindl, Rüdiger Suppin
Visualisierungen und Modell
GABU Heindl Architektur
Fotos und Handskizzen
AFF