Urban space project,
Competition, 1st prize, 2009

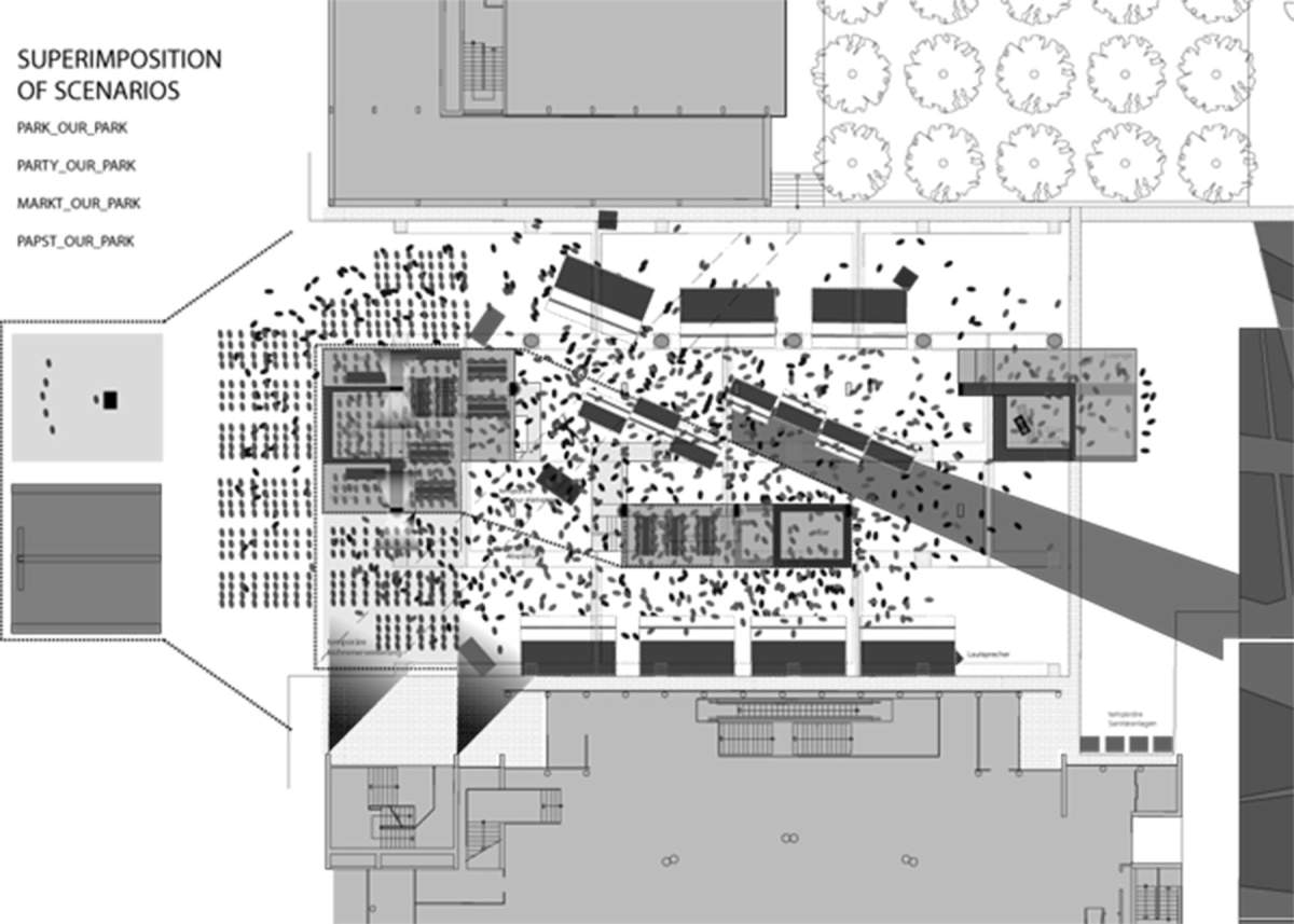
A public sculpture for everyday life and Parkour
St. Pölten (AT)
Parkour is a way to act upon and convert the city: free-running is a matter of performance in the urban everyday and of challenging city usage in general. While there are many places with signs saying that playing is not allowed here, Parkour as an unusual way of playfully moving through and within the city cannot be forbidden. What acts as a roof for everyday city users may be the landing zone or the jump-off platform for traceurs, who transform the regulated paths and designated spaces for movement. In this way Parkour traceurs question urban regulations as much as they undermine gravitational force; functionalist spaces for movement are re-evaluated as playing or training ground.
How to plan or build for Parkour then? On the occasion of the launch of the new program of the Festpielhaus St. Pölten, we were asked to re-evaluate and re-design the public place in the middle of this city´s cultural district. The site is an empty space between the main library, the main archive and the main museum of the province of Lower Austria. The goal was multi-fold: to build a piece of urban architecture, a public structure, a sculpture with spatial qualities to enhance the place’s quality of stay. Also, the sculpture was designed to be the beginning for something unfinished in both directions, as it were: while the sculpture´s tight connection with the pillars of the garage beneath it intimates a casual extension of the structure, maybe even a new building growing from it, its modular structure enables an easy bringing-down or reduction.
Platforms create plain levels for different everyday user scenarios, and the three-dimensional sculpture creates shadows, while – by definition – it may be the flying playground for Parkour professionals, only accessible to traceurs due to their height.
Since Parkour does not rely on any kind of standardized “modulor”, the proportions of the sculpture were designed in close cooperation with members of the Austrian Freestyle Foundation. In the beginning there was the drawing of motion studies, in order to understand how the city is turned upside down and how distances and proportions for city movement are challenged.

Project Partners
Percentage-for-Art project, Lower Austria, Land Niederösterreich, Austrian Freestyle Foundation St. Pölten (AFF), Festspielhaus St. Pölten, Landesmuseum St. Pölten
Team
Gabu Heindl, Rüdiger Suppin
Planning period
2009
Visualizations and model
GABU Heindl Architektur
Photos and sketches
AFF