Built | Invited competition, 1st prize
Kindergarten Furth, Furth bei Göttweig (AT) 2019-2020

Village structure:
Our goal already in the competition was to create a common kindergarten campus, which would give space to all six kindergarten groups, by connecting the two kindergartens that had been separated until then. In this coherent “campus” on the hill thus received a centre: a common children’s square for playing and meeting, by means of the spatial consolidation instead of the parking cul-de-sac of the Sankt-Wolfgang-Weg. To break up this separation of the two gardens, we proposed to reroute the Sankt-Wolfgang-Weg and turn it into a beautiful public walkway around the campus.
This created:
- A common children’s plaza
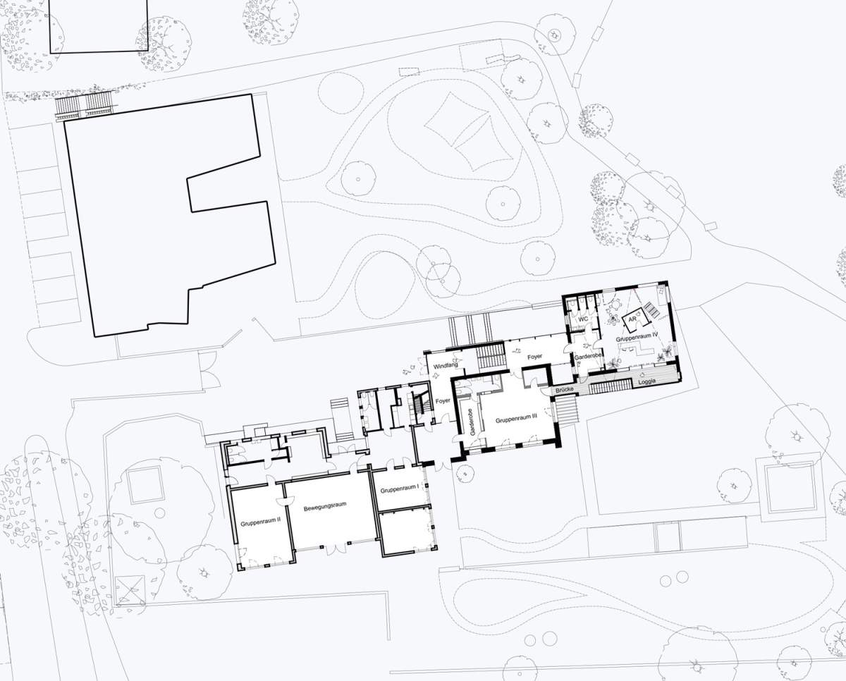
- A “children’s stair house” connecting the 4 groups with the movement room and staff rooms.
- A second entrance to the music school, accessible from the parish church, as well as barrier-free from the basement moat.
- Multifunctional rooms that can be used for the community outside of the kindergarten operation. Access for emergency vehicles and for a barrier-free parking lot is still available.
Continued construction and remodeling:
The new kindergarten group was added to the existing chain of kindergarten houses to the east and is connected to three existing groups internally via a new connecting wing. This is also the access wing, staircase and garden pavilion. A new infant day care center was developed in the previously lightly used adjoining rooms of the existing building.
Interior/Exterior Relations:
The design of the structure develops a specific interior/exterior relationship in each cardinal direction: loggia, garden access and line of sight to Göttweig Abbey for the children’s group, covered terrace and panoramic view from the parish church to the Abbey for recreation room, multi-function room and music school foyer; the connecting wooden pavilion opens to the central kindergarten plaza with generous terraces.
Multi-use:
The multifunctional rooms can also be used by the commune of Furth, by associations, etc. in the evenings or on weekends, when the kindergarten would be closed: by the possibility to separate the kindergarten, allowing the space to be used independently with a separate access from the village centre.

Promoter
Community Furth bei Göttweig, Lower Austria
Competition 1st prize, 2019
Competition planning team
Gabu Heindl, Dorotea Mandić, Lisa Schönböck, Hannah Niemand
Planning team execution
Gabu Heindl, Katrin Dielacher, Hannah Niemand, Stana Marjanović
Photographers
Andreas Buchberger, Kurt Farasin











