Přerov: Revitalisierung des Strojař Blocks – für und mit der Stadt Přerov, Přerov (CZ) 2024-2025

Das Projekt ist beispielhaft für eine Architektur kritischer Bestandserhaltung.
Das Strojař Grundstück liegt in unmittelbarer Nähe des historischen Zentrums. Gemeinsam mit der Stadt PŘEROV und drei weiteren Büros wurde im Dialogverfahren die mögliche Entwicklung des am Ufer gelegenen Areals in mehreren Phasen diskutiert.
Die Projektmission war letztlich, das bestehende Strojař-Gebäude so weit wie möglich zu erhalten und an notwendigen Stellen umzudenken. Sprich, den Bestand zu analysieren und durch minimal-invasive Architektur dennoch Flexibilität für unterschiedliche Wohntypologien sowie Gemeinschaftsräume im Innen- und Außenbereich zu schaffen. Langfristig werden strukturelle Spielräume sichtbar, gerade im Hinblick auf das Mobilitätskonzept für eine sich verändernde urbane Infrastruktur…
AuftraggeberInnen PŘEROV
Wettbewerbs-Dialogverfahren Eingeladen zum mehrphasigen Dialog nach Vorauswahl
Planungsteam Gabu Heindl, Maura Schmitt, Lisa Detter, Helen Andres, Martin Sturz, Lara Marquardt, Hannah Bayer, Uros Miletic
Bilder GABU Heindl Architektur

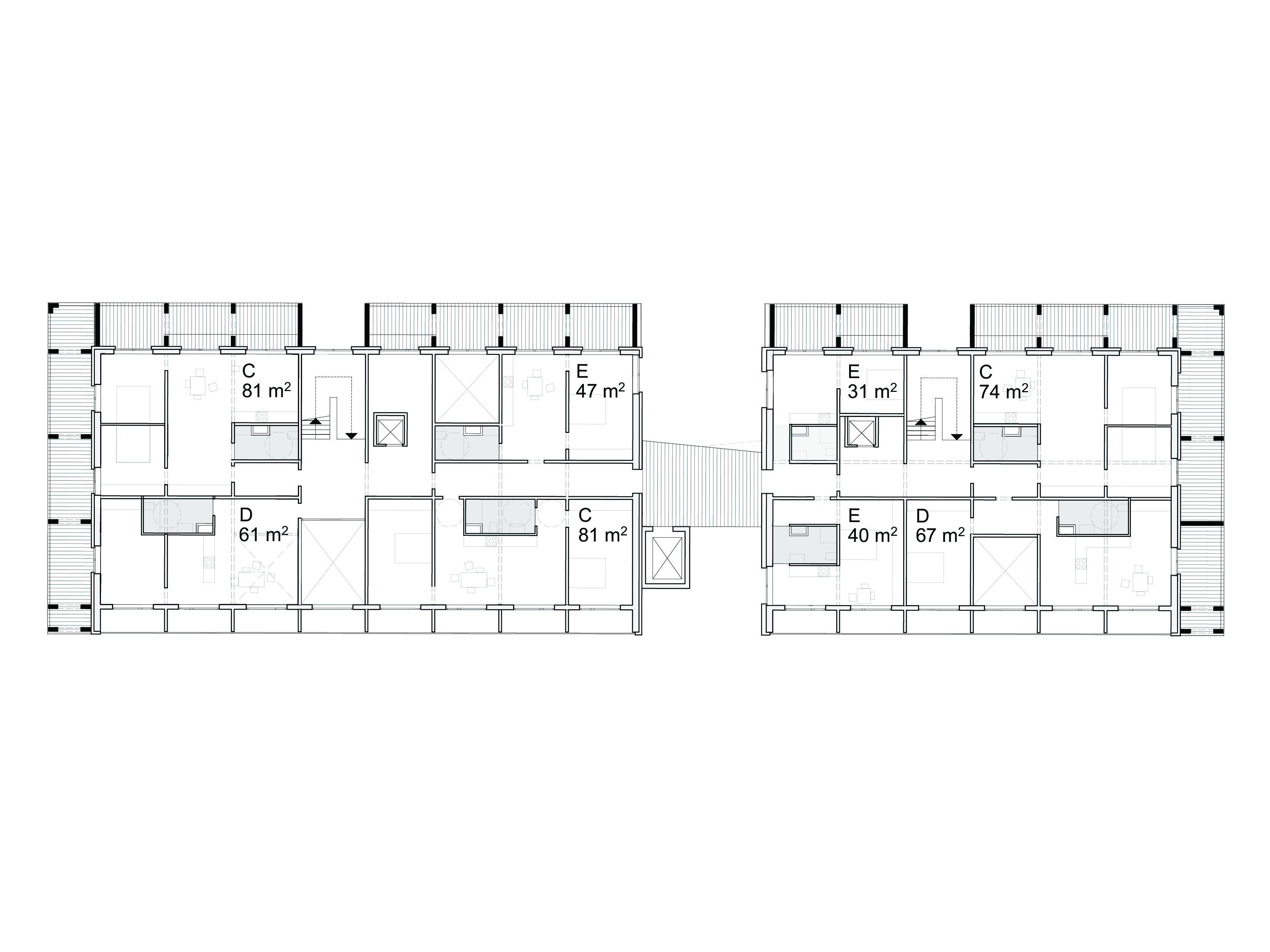
Das Strojař-Gebäude wurde 1967 in Schottenbauweise mit einem Achsmaß von 3,6 Metern errichtet. Die Konstruktionsweise basiert auf dem Fertigteilsystem G57OL, das damals in der Tschechoslowakei genutzt wurde und dem Prinzip nach typisch für die Länder des Warschauer Pakts / Ost-Blocks war. Unsere Herausforderung bestand darin, durch subtraktive Prozesse und neue Methoden der Verkleidung und Dämmung dem Gebäude ein neues Erscheinungsbild zu geben und die Grundrisse für eine diversere Nutzung umzudenken.


Entsprechend der Nutzung des Strojař-Gebäudes als Wohnheim für die Arbeiter*innen des Maschinenwerks von Přerov sind die Bestandswohnungen klein. Sie entsprechen nicht mehr den heutigen Standards. In der Ausarbeitung diverser Grundrisstypen, trafen wir die Maßnahme, jede Wohnung quer zu durchlüften und diese beidseitig zu belichten.

