Přerov: Revitalization of the Strojař Block – for and with the city of Přerov, Přerov (CZ) 2024–2025

The project is a prime example of critical preservation architecture.
The Strojař site is located in the immediate vicinity of the historic centre. In a dialogue process involving the city of PŘEROV and three other offices, the possible development of the riverside area was discussed in several phases.
Our project’s mission was to preserve the existing Strojař building as much as possible and rethink it where necessary. In other words, the existing structure was analysed and minimally invasive architecture was used to create flexibility for different residential typologies, as well as indoor and outdoor communal spaces. In the long term, the scope of the structure will become apparent, especially with regard to the mobility concept for a changing urban infrastructure.
Client PŘEROV
Competitive dialogue procedure Invited to multi-phase dialogue after pre-selection
Planning team Gabu Heindl, Maura Schmitt, Lisa Detter, Helen Andres, Martin Sturz, Lara Marquardt, Hannah Bayer, Uros Miletic
Images GABU Heindl Architecture

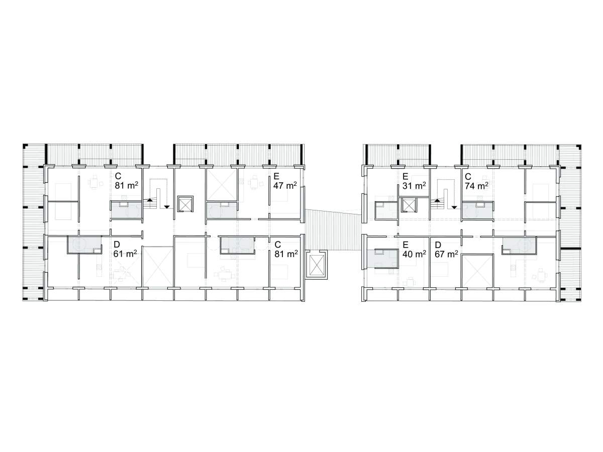
The Strojař building was constructed in 1967 using a partition wall construction method with an axis dimension of 3.6 meters. The construction method is based on the G57OL prefabricated component system, which was used in Czechoslovakia at the time and was typical of the countries of the Warsaw Pact/Eastern Bloc. Our challenge was to give the building a new look through subtractive processes and new methods of cladding and insulation, and to rethink the floor plans for more diverse use.


In line with the Strojař building’s use as a dormitory for workers at the Přerov machine factory, the existing apartments are small. They no longer meet today’s standards. In developing various floor plan types, we decided to ensure that each apartment had cross ventilation and natural light on both sides.

